Продам квартиру проспект Шевченко ЖК Олимпийский вид на море. ID 53994
Добавитьв избранное
118 500 USD
1 288 USD / м. кв.
комиссионные 5 %
Обновлено: 10.04.26
Одесская обл., Одесса, Приморский р-н., Шевченко проспект, Французский/Шевченко
Комнат:
3
Этаж:
19
Этажность:
30
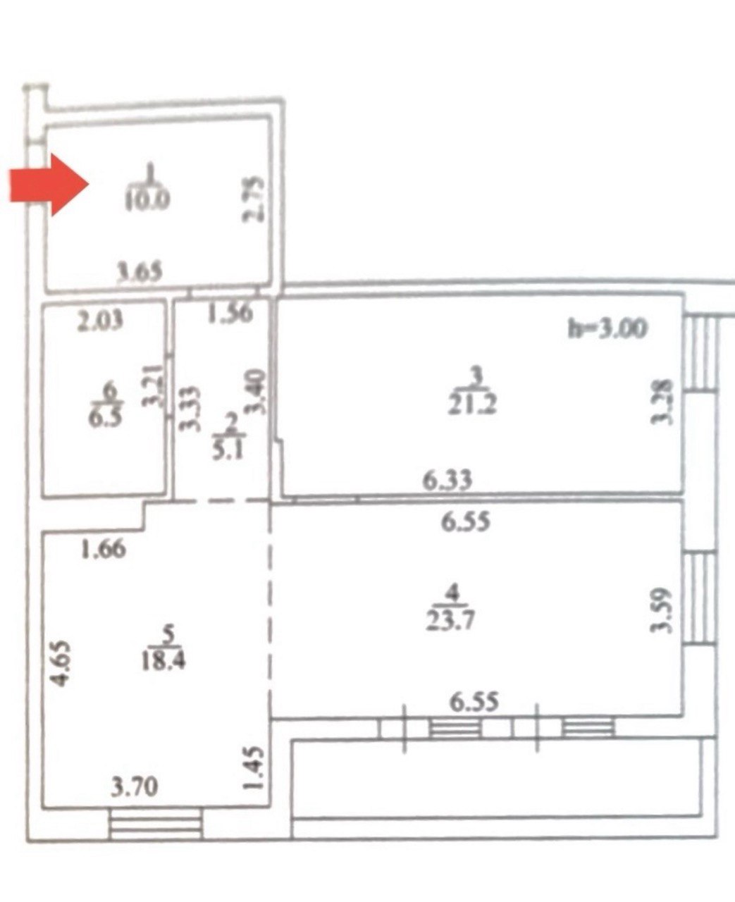
S общ. :
92 м2
Тип дома:
дому до 10-ти лет
1F-35470-401
ЖК «Олимпийский» — один из самых знаковых и статусных домов в этом районе. Предлагается к продаже эксклюзивный объект в одном из лучших жилых комплексов Одессы. Квартира на 19 этаже для тех, кто ценит свет, пространство и эстетику статусных видов. Прямой выход к парку Победы, близость Ботанического сада и Французского бульвара. Свободная планировка 92 кв.м позволяют идеально зонировать пространство: 2 полноценные спальни и просторную кухню-гостиную. 5 фасадных окон делают квартиру невероятно солнечной. Состояние «от строителей» — чистый холст для вашего дизайн-проекта. Вид: Двусторонняя панорама. Из окон открывается шикарный вид на зелень парка Победы, огни Аркадии и морской горизонт. Дополнительно: Лоджия с панорамным остеклением станет вашим любимым местом для утреннего кофе. Есть возможность приобрести место в подземном паркинге за отдельную плату.
