Французский бульвар-ЖК Гринвуд . 72 м с панорамой моря ID 54141
Добавитьв избранное
130 000 USD
1 806 USD / м. кв.
комиссионные 3 %
Обновлено: 30.03.26
Одесская обл., Одесса, Приморский р-н., Французский бульвар, Французский/Шевченко
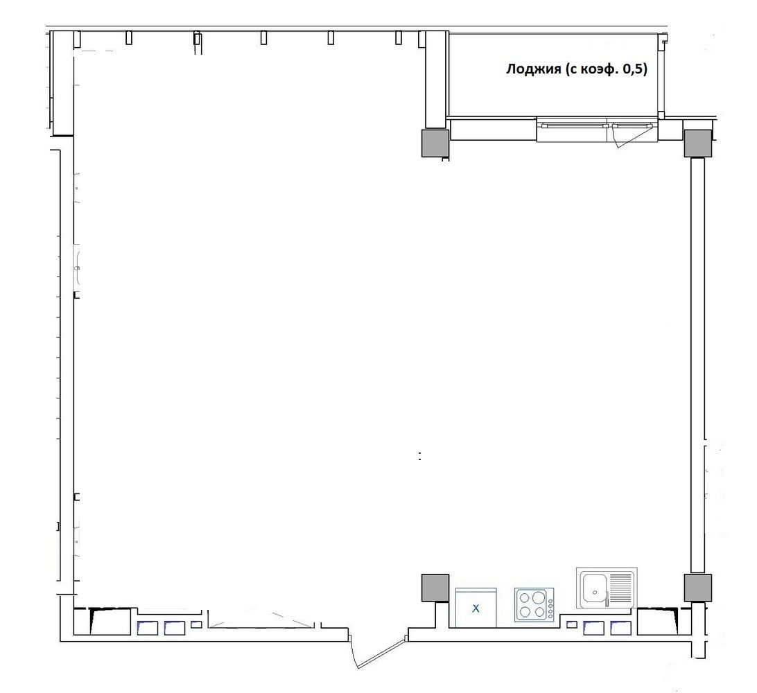
Комнат:
2
Этаж:
9
Этажность:
17
S общ. :
72 м2
Тип дома:
дому до 10-ти лет
-F-35625-88
Французский бульвар - самый востребованный на сегодняшний день жилой комплекс GreenWood. Лучшее ценовое предложение, продажа без дополнительных затрат! Вид на море именно из этой квартиры - Вы будете иметь возможность каждое утро встречать восход солнца c чашечкой кофе на собственном балконе! Квартира 72 кв.м. 9 этаж. Планируется в 1 или 2 спальни и кухню -студию. Прекрасный вид на море из окон и с балкона. Дом заселен, все функционирует, охрана, автономия, запас воды на 50 тонн, генератор. В доме шикарный СПА-центр, летом открывается собственный бассейн! Отличный вариант как для собственного проживания , так и для бизнеса!
