ЖК Олимпийский квартира 67 кв.м с видом на море ID 54134
Добавитьв избранное
85 000 USD
1 269 USD / м. кв.
комиссионные 5 %
Обновлено: 23.04.26
Одесская обл., Одесса, Приморский р-н., Шевченко проспект, Французский/Шевченко
Комнат:
1
Этаж:
23
Этажность:
30
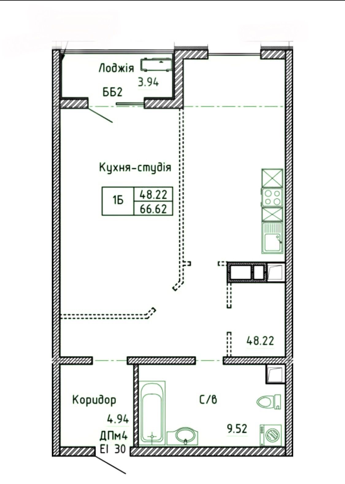
S общ. :
67 м2
Тип дома:
дому до 10-ти лет
1F-35615-401
Предлагается к продаже одно комнатная квартира на 23 этаже. Площадью 67 метра. Окна квартиры с панорамным видом на море. Квартира отлично планируется в кухню-гостиную и спальню ,большой санузел и просторную гардеробную. Есть балкон Состояние от строителей . Расположение дома лучшее в Одессе, через дорогу Парк Победы, с другой стороны Французский бульвар, море, Ботанический сад. Несколько торговых центров в ближайшей доступности, хорошая транспортная развязка во все стороны города!
